Bảo tồn, phát huy các giá trị “bất biến” của hồ Gươm là tiền đề xây dựng một đặc khu, một di sản văn hóa thế giới mới
(KTVN 257) Khu vực Hồ Gươm (Hồ Hoàn Kiếm) và Phố cổ Hà Nội là nơi tích tụ, tiếp biến văn hiến hơn ngàn năm qua, vừa sâu sắc huyền bí, vừa nhiều giá trị hấp dẫn, được coi như là trái tim trong mọi quyết sách và là một yếu tố “bất biến” trong quy hoạch phát triển đô thị Thủ đô Việt Nam (Trường, 2025). Nên đánh giá, đề xuất giải pháp bảo tồn, phát huy những giá trị “bất biến” của khu vực Hồ Gươm sẽ làm cơ sở cho việc xây dựng các chiến lược phù hợp với phát triển bền vững không gian di sản đô thị Hà Nội.
Có một thời gian dài, nhiều thành phần xã hội đã thể hiện sự cồng kềnh, nhiều tầng nấc trung gian, tự tạo khó khăn để không chịu đổi mới sáng tạo và không chịu cạnh tranh bình đẳng mà chỉ muốn “độc quyền lạc hậu” đã gây lãng phí cơ hội, thời gian, tiền bạc… Đây chủ yếu là do Việt Nam chưa sẵn sàng “Nội lực” đủ để hội nhập hiệu quả cao với thế giới. Vì vậy, trước khi nói đến phát triển thì phải thay thế, sửa đổi lỗi hệ thống cũ “hư hỏng” đang cản trở phát triển và kiến tạo Văn hóa mới tiến bộ cùng thế giới. Xây dựng một di sản Văn hóa Thế giới mới không phải trọng tâm làm một công trình hoành tráng, độc đáo, đạt các tiêu chí của UNESCO mà là sớm kiến tạo một “Văn hóa mới tươi tốt” bền vững, đoàn kết dẫn dắt cộng đồng, dân tộc và được Thế giới tôn trọng. Bây giờ, để ứng phó với một thế giới phức tạp khó lường, cần xây dựng một “Sức mạnh nội sinh mới” từ tài nguyên trí tuệ 100 triệu người Việt, cộng hưởng với giá trị văn hiến ngàn năm của dân tộc. Một di sản Văn hóa Thế giới mới là minh chứng cho một “Sức mạnh nội sinh mới”, sẽ thu hút, phát huy được “Ngoại lực”, ngoại giao, ngoại tệ… và là cách tốt nhất để giải quyết mâu thuẫn giữa bảo tồn và phát triển, cũng như đảm bảo vừa bảo tồn vừa phát triển.
Không gian Hồ Gươm đã được xác định rõ về quy mô, tính chất, thể chế hóa trong nhiều quyết định của chính quyền các cấp, gần nhất là tại Quyết định số 1360/QĐ-UBND ngày 19/3/2021 của UBND TP Hà Nội về việc phê duyệt đồ án Quy hoạch phân khu đô thị H1-1B (Khu vực Hồ Gươm và vùng phụ cận thuộc địa giới hành chính 06 phường của quận Hoàn Kiếm, bao gồm các phường: Hàng Gai, Hàng Bạc, Hàng Trống, Lý Thái Tổ, Tràng Tiền, Phan Chu Trinh) tỷ lệ 1/2000. Nơi đây có khoảng 6.000 dân trên diện tích khoảng 63,7ha được hình thành, tiếp nối và phát triển từ hơn 1.000 năm trước tới nay, đã trở thành trái tim, trung tâm chính trị, văn hóa, kinh tế, xã hội của Thủ đô và Việt Nam nên có nhiều giá trị cả về vật thể và phi vật thể.
KHU VỰC HỒ GƯƠM GẮN LIỀN VÀ HỘI TỤ CÁC GIÁ TRỊ LỊCH SỬ – VĂN HÓA, XÃ HỘI – KIẾN TRÚC CẢNH QUAN
Từ thời Lý-Trần, Hồ Gươm là một phần của sông Hồng và là nơi luyện tập thủy quân. Hiện nay Hồ Gươm có diện tích là 12ha, bằng ½ diện tích hồ vào thời Nhà Lê (Quốc, 2023), gắn với huyền thoại trả kiếm thần cho rùa vàng (thế kỷ XV). Đây là biểu tượng cho tinh thần yêu nước, khát vọng hòa bình của dân tộc Việt. Thời Lê trở thành trung tâm văn hóa, tôn giáo gắn với đền Ngọc Sơn, Tháp Bút (Tả Thanh Thiên). Từ giữa thế kỉ XV, sau khi Chúa Trịnh đặt tên hồ là Tả Vọng, hồ đã trở thành một thắng cảnh quan trọng của trung tâm kinh thành. Trong tiến trình phát triển đô thị cuối thế kỉ XIX, đầu thế kỉ XX, hồ Hoàn Kiếm trở thành không gian trung gian chuyển tiếp giữa đô thị thương mại châu Á ở phía Bắc với đô thị hiện đại kiểu châu Âu ở phía Nam và các cơ sở hành chính thuộc địa Pháp ở phía Tây của thành phố. Năm 1888, chính quyền thuộc địa Pháp chính thức thành lập thành phố Hà Nội và lấy hồ Hoàn Kiếm làm trung tâm, với một con đường dạo quanh hồ do Toàn quyền Đông Dương là De Lanessan xây dựng. Kể từ thời điểm này, hồ Hoàn Kiếm chính thức được phân tách với không gian xung quanh, trở thành một thực thể cảnh quan đô thị riêng biệt của Hà Nội. Từ năm 1899 đến 1911, cảnh quan xung quanh hồ biến đổi rất nhanh với các công trình xây dựng ở cả 4 hướng xung quanh hồ, là nỗ lực của người Pháp để mở rộng thành phố về phía Nam, với những ô phố vuông vắn được quy hoạch. Vườn hoa Lý Thái Tổ (nguyên là vườn hoa Paul Bert), được xem như công viên đô thị đầu tiên của Hà Nội. Từ sau năm 1942, không có có nhiều biến đổi trong không gian cảnh quan hồ Gươm.
Các trục không gian cảnh quan chính của khu vực
Hồ Gươm (điềm nhấn là cụm di tích đền Ngọc Sơn và Tháp Rùa, là di tích quốc gia đặc biệt).
Quảng trường Đông Kinh Nghĩa Thục là không gian cảnh quan kết nối khu vực Phố cổ đến khu vực đền Ngọc Sơn.
Quảng trường Cách mạng Tháng Tám (điểm nhấn là Nhà hát Lớn).
Quảng trường phía trước Ngân hàng Nhà nước (điểm nhấn là Ngân hàng Nhà nước).
Khu vực sân trước Nhà thờ Lớn (điểm nhấn là Nhà thờ Lớn).
Ngoài các trục không gian nêu trên thì còn có các điểm nhìn quan trọng khác như: Từ Hàng Bài tới Hồ Gươm; Từ trục Đinh Tiên Hoàng đến vườn hoa Đền Bà Kiệu; Tượng Vua Lê Thái Tổ, Tượng Vua Lý Thái Tổ và từ Hồ Gươm ra khu vực Phố cổ. Kiến trúc công trình xung quanh cố gắng đảm bảo thấp dần ra phía hồ theo đường Silhouette. Nơi đây hình thành và phát triển đô thị từ thời Pháp thuộc, có lịch sử khoảng 100 năm với nhiều di sản đô thị, kiến trúc có giá trị, là không gian giao thoa Văn hóa Đông – Tây, văn hóa Việt và hội nhập quốc tế, kết nối và chuyển tiếp không gian Phố cổ – hố cũ; nằm kề cận với cảnh quan tự nhiên và gắn liền với nền văn hóa sông Hồng.
Hồ Gươm đóng vai trò là không gian mở trung tâm, một “lõi xanh” lớn nhất khu vực Phố cổ và Phố cũ, tạo điểm nhấn cảnh quan và điều hòa vi khí hậu. Các công trình kiến trúc quan trọng được bố trí khéo léo quanh hồ, tạo nên một tổng thể thống nhất nhưng đa dạng, không lấn át nhau. Mỗi công trình có vị trí “đắc địa” để phô bày vẻ đẹp và tương tác với mặt nước, như 1 tầm gương khổng lồ. Giao thông vòng quanh: Hệ thống đường giao thông bao quanh hồ (Đinh Tiên Hoàng, Lê Thái Tổ, Hàng Khay, Tràng Tiền…) tạo thành một vòng tuần hoàn, vừa kết nối khu vực vừa là tuyến ngắm cảnh lý tưởng.
Tháp Rùa là một biểu tượng kiến trúc đặc trưng nhất của Hồ Gươm và Hà Nội, là một tháp nhỏ ba tầng xây trên gò đất giữa hồ, mang phong cách kiến trúc Gothic Pháp pha trộn yếu tố bản địa. Vị trí độc đáo giữa mặt nước tạo nên hình ảnh đầy chất thơ, uy nghi và huyền thoại. Đền Ngọc Sơn nằm trên đảo Ngọc, nối với bờ bằng cầu Thê Húc, mang phong cách kiến trúc truyền thống Việt Nam (nhà gỗ mái cong, trang trí long ly quy phượng) phù hợp với cảnh quan và triết lý Á Đông (thiên-địa-nhân hòa hợp). Tháp Bút, Đài Nghiên, Lầu Đắc Nguyệt được xây dựng ở phía Bắc hồ, thể hiện tinh thần hiếu học, tôn vinh văn chương, trí tuệ người Việt. Trụ sở Bưu điện Hà Nội với kiến trúc cổ điển Pháp đồ sộ, nằm ở góc phố Đinh Tiên Hoàng – Lê Thạch. Khách sạn Sofitel Legend Metropole Hà Nội là khách sạn cổ kính mang phong cách Tân cổ điển pha trộn kiến trúc Địa phương Pháp. Tòa án Nhân dân Thành phố Hà Nội (trước là Tòa Thị chính Pháp) với Kiến trúc Đông Dương đặc sắc. Trụ sở Báo Hà Nội Mới (trước là Sở Tài chính) với Kiến trúc Art Deco. Các dãy nhà phố Pháp dọc các phố Lê Thái Tổ, Tràng Tiền, Hàng Khay… với kiến trúc mặt tiền đồng đều, tạo nên một diện mạo đô thị châu Âu thanh lịch. Sự hiện diện song song của Tháp Rùa/Đền Ngọc Sơn (Đông phương) và các tòa nhà Pháp (Tây phương) tạo nên một cuộc đối thoại kiến trúc độc đáo, không hề xung đột mà bổ sung cho nhau, thể hiện bề dày lịch sử và sự tiếp biến văn hóa.
Khu vực hồ Gươm dù có quy mô nhỏ, đã có đầy đủ các yếu tố để tạo ra những hình ảnh đô thị đặc biệt với các yếu tố như mốc (landmark), trục dẫn (paths), cạnh biên (edges), khu vực (district) và nút giao (nodes) (Lynch, 1992).
Hồ Gươm còn giữ giá trị sinh thái trọng yếu trong khu vực trung tâm thành phố, đặc biệt trong bối cảnh đảo nhiệt đô thị (Urban Heat Island) gia tăng khi diện tích đất xây dựng tăng nhanh, diện tích không gian xanh giảm mạnh. Kết quả phân tích của Le et al. (2019) cho thấy các vùng xung quanh hồ có hiệu ứng làm mát rõ rệt, với mức giảm nhiệt độ bề mặt cao nhất lên tới 3.6°C vào mùa hè và khả năng lan tỏa nhiệt độ mát mẻ lên đến 700m từ hồ. Hệ thống mặt nước của thành phố, đặc biệt các hồ lớn như hồ Hoàn Kiếm, đóng vai trò quan trọng trong việc điều hòa nhiệt độ không khí và cải thiện vi khí hậu khu vực. Hệ thực vật ven hồ (cổ thụ như đa, si, liễu rủ…) và trên đảo Ngọc kết hợp là nơi sinh sống của quần thể rùa quý hiếm, điểm dừng chân của các loài chim di cư… tạo hệ sinh thái đặc biệt cùng màu xanh dịu mát, điểm xuyết hoa theo mùa, góp phần điều hòa không khí và tạo bối cảnh thiên nhiên.
Khu vực Hồ Gươm là phố đi bộ cuối tuần; là trung tâm sinh hoạt văn hóa cộng đồng của người Hà Nội, gắn kết với các hoạt động tâm linh tín ngưỡng với văn hóa giáo dục thông qua các công trình kiến trúc, hoạt động lễ hội (Đền Ngọc Sơn thờ Văn Xương Đế Quân, Đức thánh Trần Hưng Đạo…) phù hợp với mọi lứa tuổi, tầng lớp, mọi thành phần trong xã hội; là biểu tượng của văn hóa, học vấn, văn hiến Kinh thành Thăng Long; là không gian giao lưu cộng đồng mở – vừa phục vụ dân cư địa phương vừa thu hút khách du lịch trong và ngoài nước. Người dân coi đây là “phòng khách chung”, “tài sản chung”, một phần ký ức tự hào và bản sắc “sống động, gần gũi và không thể thay thế” của chính họ. Không gian này xóa nhòa khoảng cách xã hội, tạo sự bình đẳng trong tiếp cận và hưởng thụ.
ĐÁNH GIÁ SWOT TRONG QUẢN LÝ, QUY HOẠCH KHÔNG GIAN KHU VỰC HỒ GƯƠM
Điểm mạnh (S)
Khu vực đã có Quy hoạch phân khu được duyệt, được xếp hạng và công nhận là Di tích lịch sử – văn hóa cấp quốc gia đặc biệt; có Điều lệ quản lý xây dựng, bảo tồn và tôn tạo. Có mục tiêu, sự quan tâm tới bảo tồn phát triển các không gian di sản vật thể và phi vật thể trong quy hoạch khu vực. Đã tổ chức thành công và mở rộng phố đi bộ tại khu vực này, trở thành điểm thu hút lượng lớn khách du lịch. Khu vực là nơi kết nối, chuyển tiếp khu Phố cổ (khá tự do nhỏ hẹp, từ thế kỷ XII-XIX) với khu Phố Pháp (đường phố lớn rộng, từ cuối XIX). Bên cạnh đó là không gian kiến trúc văn hóa tâm linh, tín ngưỡng, truyền thuyết,… có từ ngàn năm trước tới nay, tạo sự đa dạng về phong cách, hình thái kiến trúc. Đây là không gian mở quý giá, duyên dáng với cây xanh, mặt nước, cảnh quan đa dạng, là trung tâm của trung tâm thành phố. Gắn kết và chuyển tiếp các hoạt động thương mại sôi động với không gian ở của người dân tạo nên sự độc đáo của di sản đô thị trong mối quan hệ giữa khía cạnh tinh thần, yếu tố phi vật thể với địa điểm, không gian vật thể.
Điểm yếu (W)
Khu vực hầu như không còn quỹ đất trống, hạn chế trong việc đáp ứng các nhu cầu mới. Các quỹ đất chuyển đổi chức năng được ưu tiên bổ sung xây dựng các công trình hạ tầng kỹ thuật và xã hội còn thiếu và khó có khả năng mở rộng, phát triển. Dân cư khu vực vẫn tăng nhanh, trong khi việc di dân, giãn dân phố cổ ra bên ngoài còn hạn chế và khó khả thi. Các giải pháp, mô hình bảo tồn không gian di sản đô thị còn nhiều bất cập, khó phát triển mới, thiếu thực tế. Công trình ở đây có chức năng, tính sở hữu phức tạp và có nhiều quan điểm trái chiều, kéo dài trong nhiều thời kỳ nên rất khó quản lý, cân đối cho hài hòa hoặc khó có thể tạo nên một phong cách, hình thái kiến trúc nhất quán, đặc trưng một cách có trật tự. Các thông tin dữ liệu, phương pháp duy tu, bảo tồn còn thiếu và chưa chính xác nên có sự khó khăn trong phục dựng và khó tạo sự đồng thuận trong cộng đồng qua sự quan tâm đánh giá khá khắt khe từ các chuyên gia và người dân. Các nguồn lực dành cho bảo tồn và phát triển di sản đô thị còn yếu và bị phân mảnh. Chủ yếu vẫn trông chờ vào nguồn lực từ ngân sách nhà nước. Chưa có chiến lược đủ mạnh để vượt qua các rào cản về nhận thức, về thói quen, truyền thống cũ nhằm tạo nên một văn hóa mới, một không gian mới mang tính bền vững hơn. Sự điều chỉnh Quy hoạch cục bộ có thể làm phá vỡ tính bền vững của Quy hoạch đã được phê duyệt và mục tiêu bảo tồn, phát triển di sản đô thị trong khu vực này. Các điều chỉnh về cơ chế, chính sách, thể chế lại thường từ trên xuống và ít lắng nghe ý kiến từ chuyên gia hoặc từ cộng đồng. Do các quan điểm quản lý, phát triển có nhiều biến động nên tốc độ xây dựng công trình trong khu vực thường bị chậm, tốn kém và bị kéo dài hoặc bị hạn chế phát triển. Có sự mâu thuẫn lớn giữa bảo tồn và phát triển mới đối với các di sản đô thị cả về giá trị vật thể và phi vật thể.
Cơ hội (O)
Công nghệ cao và chuyển đổi số đang thay đổi mọi mặt của đời sống dân cư và đã hình thành cách quản lý mới, cách giao tiếp mới, cách bảo tồn mới. Sự gia tăng dân số khu vực do du lịch, nhập cư, di cư,… đã tạo ra nhiều nhu cầu mới, nhiều dịch vụ mới, nhiều sản phẩm mới. Cảnh quan và xu thế Xanh, toàn cầu hóa là điểm hấp dẫn và tạo cơ hội phát triển mới như kinh tế Xanh, kinh tế tuần hoàn,… Công tác bảo tồn được hỗ trợ bởi internet, không gian thực tế ảo,… nên khả năng tiếp cận tốt hơn, đa chiều hơn. Có thể thu hút được nhiều nguồn lực mới từ bên ngoài vào tạo sự đột phá trong đầu tư xây dựng phát triển di sản đô thị. Cơ hội phát triển mạnh hơn các hoạt động dịch vụ gắn với văn hóa phi vật thể đặc trưng của Hà Nội và Việt Nam trong các di tích, di sản đô thị. Có điều kiện để đổi mới thể chế quản lý đô thị di sản. Sự hạn chế việc tiếp cận của số đông có nguồn lực yếu khó giải quyết các vấn đề đặt ra, lại có thể trở thành cơ hội cho số ít những nhà đầu tư lớn, dài hạn và hình thành các công trình có tầm cỡ quốc gia và quốc tế tại khu vực này.
Thách thức (T)
Biến đổi khí hậu làm gia tăng sự xuống cấp cả về chất lượng sống của người dân cũng như tuổi thọ của các công trình di sản đô thị. Công nghệ và sự gia tăng dân số kéo theo ô nhiễm không khí, rác thải, vệ sinh môi trường,… Hệ thống hạ tầng kỹ thuật và xã hội đang bị quá tải, khó mở rộng và đang bị xuống cấp nghiêm trọng. Cảnh quan đô thị và các công trình kiến trúc mới có thể phá vỡ truyền thống đã có từ xưa mà không có sự chuyển tiếp hài hòa, phù hợp. Giải pháp di dân, giãn dân khu Phố cổ và sinh kế cho người dân còn khó thực thi, chưa thỏa đáng, chưa phù hợp với thực tế. Nhiều dịch vụ, hoạt động văn hóa phi vật thể còn chưa phù hợp với không gian di sản đô thị. Trong đó, việc quản lý các dịch vụ, hoạt động kinh tế ban đêm còn nhiều bất cập và chưa xử lý được. Chi phí đầu tư xây dựng ngày càng tăng cao, nhất là việc đầu tư xây dựng các công trình hạ tầng kỹ thuật thiết yếu,… Giá trị bất động sản quá cao ở đây đang là rào cản lớn khi tái thiết đô thị và khó tạo động lực mới, giá trị mới để phát triển di sản đô thị. Đánh mất bản sắc của đô thị trong thời đại toàn cầu hóa đã hiện hữu nếu không có giải pháp chiến lược phù hợp và cấp bách. Sự đồng bộ chiến lược tại Việt Nam chưa được quan tâm đúng mức. Việc sắp xếp lại đơn vị hành chính trước mắt có thể gây ra nhiều xáo trộn và chậm trễ trong việc triển khai các dự án xây dựng, bảo tồn, tôn tạo các di tích, di sản đô thị…
Từ năm 1954 tới nay, khu vực hồ Hoàn Kiếm và vùng phụ cận đã có 7 lần điều chỉnh quy hoạch khác nhau. Tất cả các quy hoạch này đều xác định hồ Hoàn Kiếm là trung tâm Thủ đô với định hướng cần được bảo tồn di sản, cảnh quan và phát huy giá trị (Quốc, 2023; Sơn, 2015). Tuy nhiên, cũng không ít các dự án đề xuất hoặc công trình xây dựng trong khu vực này gặp phải sự phản đối của xã hội. Ngoài ra, các biển quảng cáo, bảng hiệu quá cỡ và lòe loẹt trong khu vực cũng gây ô nhiễm thị giác nghiêm trọng, át đi cảnh quan tự nhiên và kiến trúc di sản, phá vỡ sự yên bình vốn có,… do thiếu sự đồng bộ trong thiết kế. Không gian cảnh quan của Hồ Hoàn Kiếm cần phải quy hoạch xây dựng, điều chỉnh lại theo hướng giảm mật độ xây dựng, mở rộng không gian cảnh quan, kết nối các vườn hoa, quảng trường lân cận để tăng khả năng tiếp cận và các hoạt động cộng đồng, cho phù hợp hơn trong thời gian tới.
Trước đây, cũng có nhiều đề xuất quy hoạch được đánh giá cao như đồ án của KTS Lê Thị Kim Dung đoạn Giải Đặc biệt của Cuộc thi World Triennial of Architecture năm 1994, hay đồ án của KTS Hoàng Thúc Hào đạt giải nhì (không có giải nhất) cuộc thi Ý tưởng quy hoạch và thiết kế đô thị khu vực Hồ Gươm và phụ cận. Đến năm 2025, quy hoạch khu vực này được điều chỉnh cục bộ và tiến hành đồng thời quy hoạch tổng mặt bằng tỷ lệ 1/500 cho khu vực phía Đông của hồ Hoàn Kiếm theo tình hình mới, cụ thể là phá bỏ trung tâm thương mại số 5 Đinh Tiên Hoàng để mở rộng quảng trường Đông Kinh Nghĩa Thục và dự kiến làm ga C9 mới, giải toả các công trình trên ô đất của EVN phía đông trở thành quảng trường công viên đô thị…
Trong bối cảnh chuyển đổi tổ chức sang chính quyền 3 cấp, mở rộng không gian phát triển, cùng chủ trương coi đổi mới sáng tạo, kinh tế tư nhân và văn hóa là động lực phát triển chính của xã hội để hội nhập thế giới sâu rộng, thì không gian khu vực Hồ Gươm cũng cần chuyển đổi toàn diện, đồng bộ và có tư duy phát triển mới, đột phá cho xứng tầm.

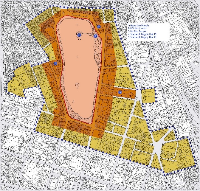
Đề xuất vùng lõi (màu cam) trở thành Bảo tàng Mở và chỉ dành cho đi bộ
(Ảnh do Nhóm NC trường ĐH Mở HN thực hiện năm 2025)
BẢO TỒN, PHÁT HUY GIÁ TRỊ “BẤT BIẾN” HỒ GƯƠM NHẰM XÂY DỰNG MỘT ĐẶC KHU VĂN HÓA VÀ KINH TẾ SÔNG HỒNG, TIỀN ĐỀ XÂY DỰNG MỘT DI SẢN VĂN HÓA THẾ GIỚI MỚI
Với các giá trị và phân tích nêu trên thì Mô hình không gian khu vực Hồ Gươm nên quy hoạch thành một “Đặc khu văn hóa và kinh tế sông Hồng”, là trái tim của ngành công nghiệp văn hóa Thủ đô, kết hợp vừa hiện đại vừa truyền thống, chủ yếu dành cho đi bộ, hạn chế phương tiện giao thông và di chuyển các cơ quan công quyền đi nơi khác,… tương tự như cách Pháp làm với quần thể Di sản các công trình dọc sông Seine, riêng bảo tàng Louvre đã 210ha. Cụ thể: biến toàn bộ đường giao thông quanh Hồ Gươm (Phố Đinh Tiên Hoàng, Lê Thái Tổ,…) thành công viên cây xanh, chỉ dành cho người đi bộ để mở rộng không gian hồ, hình thành không gian Công viên Trung tâm văn hóa Mở kiêm Bảo tàng ngoài trời… và tạo không gian mở, cây xanh nối từ Hồ Gươm ra Sông Hồng. Hạn chế xây dựng công trình cao tầng bám xung quanh Hồ Gươm trong bán kính 500m tính từ đường ven bao hồ và nên bỏ trống tầng 1, hướng tiếp cận từ ven hồ tới các công trình lân cận chỉ là đường đi bộ, chuyển hướng tiếp cận trụ sở UBND thành phố Hà Nội ra xa Hồ Gươm hoặc về Hồ Tây, các công trình ngầm như bãi đỗ xe, ga C9 nên dừng trước tuyến vành đai giao thông quanh hồ khoảng từ 50-100m…

Vị trí 18 hạng mục công trình chính thuộc Di sản Các công trình hai bờ sông Seine, Paris, Pháp: Trong hình vẽ ký hiệu 1. Tháp Eiffel; 2. Công viên Champ de Mars; 3. Trường Quân sự; 4. Vườn Trocadero; 5. Bảo tàng Tokyo; 6. Điện Invalides; 7. Cung điện lớn và Cung điện nhỏ; 8. Quảng trường Concorde; 9. Nhà thờ Madeleine; 10. Vườn Tuileries; 11. Bảo tàng Louvre; 12. Cung điện Bourbon; 13. Bảo tàng Orsay; 14. Trường Nghệ thuật Quốc gia; 15. Viện Nghiên cứu Pháp; 16. Đảo mang tên Ile de la Cite; 17. Đảo mang tên Ile Saint Louis; 18. Tòa Thị chính Paris.
Bên cạnh 06 chiến lược có trong Quyết định số 45/1999/QĐ-UB đã được UBND TP Hà Nội phê duyệt thì nên bổ sung Chiến lược cộng sinh bằng Đầu tư hợp tác PPP cùng với sự tham gia đồng sở hữu của cộng đồng và đồng bộ chiến lược trong bảo tồn và phát triển bền vững không gian di sản đô thị. Cụ thể là mở rộng nguồn lực xã hội hóa hay “đầu tư công quản lý tư” cho bảo tồn, phát triển di sản đô thị bên cạnh nguồn lực từ ngân sách nhà nước vẫn đang là chủ đạo, nhiều khi là duy nhất.
Quy hoạch theo hướng kết hợp đồng thời từ trên xuống với từ dưới lên, ưu tiên phát triển các ngành Công nghiệp văn hóa và phát triển văn hóa mới. Quản lý Quy hoạch mang tính kiến tạo phát triển và linh hoạt với những dịch vụ xanh, sạch, đẹp, hiện đại, văn minh và sang trọng. Đầu tư công kết hợp quản trị tư có thời hạn là phù hợp với xu thế phát triển và phù hợp đặc điểm, đặc trưng khu vực Hồ Gươm ngàn năm văn hiến. Bám sát và tăng cường quản lý theo Điều lệ quản lý khu phố cổ, phân vùng bảo tồn, phân cấp các công trình kiến trúc, quỹ di tích, di sản đô thị cần bảo vệ, bảo tồn và tôn tạo tại khu vực hồ Gươm và khu Phố cổ Hà Nội…. Khôi phục và phát huy các giá trị văn hóa phi vật thể tại khu vực tạo sức hút mới bằng các hoạt động văn minh, văn hóa tiến bộ,… tại các không gian di sản đô thị ở đây.
Tóm lại, hồ Gươm hội tụ tổng hợp các giá trị thẩm mỹ – lịch sử – văn hóa – xã hội, cộng đồng và là một biểu tượng “Bất biến” của Thủ đô Hà Nội, nơi mọi yếu tố kiến trúc và cảnh quan được quy tụ trong một chỉnh thể hài hòa giữa thiên nhiên và con người, giữa vật thể và phi vật thể, giữa truyền thống và hiện đại. Đây là điểm đến không thể bỏ qua của du khách trong và ngoài nước, hồ Gươm đã trở thành một “quần thể sống hoàn chỉnh” nơi giao lưu, tiếp xúc giữa người dân địa phương và du khách, góp phần quảng bá hình ảnh và thúc đẩy hội nhập và hiểu biết văn hóa. Bởi vậy Khu vực không gian hồ Gươm nên được quy hoạch xây dựng phát triển thành một Đặc khu văn hóa và kinh tế sông Hồng riêng có của Hà Nội và là tiền đề xây dựng một Di sản văn hóa thế giới mới của Việt Nam trong Kỷ nguyên mới./.
TÀI LIỆU THAM KHẢO
1. Khuat, T. H., & Dang, H. V. (2023). Đặc điểm, tiềm năng và định hướng bảo tồn không gian Hồ Gươm trong quá trình phát triển liên tục. Tạp chí Xây dựng, (10), 125-131.
2. Lynch, K. (1992). The image of the city (21st ed). Mit press.
3. Trường, N. (2022). Hà Nội “chốt” phương án ga ngầm metro cạnh Hồ Gươm. Vietnamnet.
4. Lê Xuân Trường, 2022, Quy hoạch Kiến trúc tương tác Văn hóa & Kinh tế, NXB Xây dựng
5. Lê Xuân Trường, “Dĩ bất biến ứng vạn biến” trong trong Quy hoạch chung Hà Nội cùng Việt Nam bước vào một Kỷ nguyên mới, Tạp chí Kiến trúc Việt Nam số 256/2025.
6. Quốc, D. T. (2023). Quận Hoàn Kiếm giá trị cốt lõi của lịch sử thủ đô Hà Nội. Tạp Chí Kiến Trúc Việt Nam, 1(256), 19-23.
7. Dự thảo Đề tài NCKH của Trường Đại học Mở Hà Nội về Nghiên cứu các yếu tố Bất biến trong Quy hoạch chung TP Hà Nội dưới góc nhìn Văn hóa.
TS.KTS Lê Xuân Trường – Trường Đại học Mở Hà Nội


















