MK House
(Văn bản mô tả do KTS cung cấp) Đối với những người quen thuộc với Hà Nội, việc đi dạo qua 36 phố cổ vẫn có thể mang lại cảm giác thơ mộng, nhưng nó không còn che giấu được sự thật rằng thành phố đã trở nên đông đúc hơn. Trong số những ngôi nhà chật chội, MK House được thiết kế cho một gia đình nhỏ gồm ba người trên diện tích vuông vắn 4x11m, được hướng dẫn bởi một mong muốn đơn giản: một ngôi nhà đủ để sống, làm việc và vui chơi mà không có rào cản.
Địa điểm: Hà Nội
Kiến trúc sư: Atelier 12
Diện tích: 215m2
Năm hoàn thành: 2022
Ảnh: Chimnon studio
Ở những thành phố lớn như Hà Nội, tình trạng phân mảnh không gian sống của gia đình đã trở nên phổ biến. Khi mật độ dân số tăng lên, những ngôi nhà ngày càng khép kín hơn, từ mặt tiền đến nội thất và các phòng riêng biệt, bảo vệ cư dân khỏi sự xâm nhập từ bên ngoài. Tuy nhiên, khi làm như vậy, chúng cũng mở rộng khoảng cách về mặt cảm xúc và không gian giữa các thành viên trong gia đình. Thế giới bên ngoài càng bị hạn chế, mọi người càng mong muốn sự cởi mở từ bên trong. Ngoài ra, sự khép kín của những ngôi nhà điển hình ở Hà Nội cũng là lý do khiến chủ nhà mong muốn không gian mở để ngôi nhà không bị cô lập và tạo ra sự kết nối mềm mại với cuộc sống đường phố. Đó là lý do tại sao chúng tôi tiếp cận MK House theo cách khác biệt: một mặt bằng mở, tối thiểu các vách ngăn và nhấn mạnh vào các yếu tố tự nhiên như ánh sáng mặt trời và luồng gió, chúng tôi đã tạo ra một môi trường sống mang lại cảm giác trọn vẹn và giữ cho các thành viên trong gia đình được kết nối.
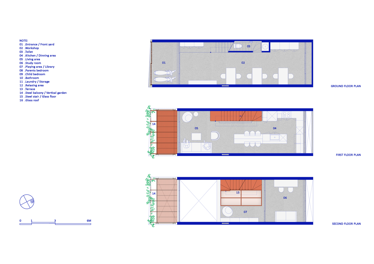
Ở tầng dưới, nơi làm việc của chủ nhà là không gian mở, sử dụng gần như toàn bộ diện tích. Các khu vực chức năng như phòng khách, bếp, bàn ăn, phòng ngủ, v.v. của gia đình được bố trí ở các tầng trên. Với chiều rộng hạn chế chỉ 4 mét, giải pháp tổ chức không gian đòi hỏi tính hiệu quả, duy trì thông gió và kết nối nội bộ. Thay vào đó, chúng tôi thiết kế một hành lang sàn trong suốt kết hợp với thang thép rỗng, một cấu trúc linh hoạt đóng vai trò là nền tảng giao thông, nơi lấy ánh sáng tự nhiên và thông gió, đồng thời mở ra kết nối theo chiều dọc liền mạch trong toàn bộ ngôi nhà. Điều này không chỉ tăng cường sự rõ ràng về không gian mà còn thúc đẩy sự tương tác hàng ngày giữa các thành viên trong gia đình.
Mặt tiền ngôi nhà là một khu vực lùi theo quy định quy hoạch, nơi không thể xây dựng bằng bê tông, nhưng mở ra cơ hội cho một cấu trúc nhẹ hơn. Chúng tôi đã chọn lắp đặt hệ thống sàn thép rỗng với mặt tiền được đan bằng các dải thép mỏng, mô phỏng hình dạng của “liếp tre” – mành tre truyền thống. Cấu trúc này có nhiều chức năng: nó hoạt động như một ban công, một vùng đệm theo mùa, một khu vườn thẳng đứng hoặc đơn giản là một tấm rèm thép chảy giữa ngôi nhà và cảnh quan đường phố. Nó cũng là một phép ẩn dụ lặng lẽ về cách kiến trúc truyền thống của Việt Nam giao thoa với thiên nhiên một cách nhẹ nhàng, chu đáo và thích ứng.
Bên cạnh những yêu cầu về công năng, MK House còn phản ánh một tầng văn hóa riêng trong cuộc sống của gia chủ, được vun đắp qua năm tháng với đời sống tinh thần và thẩm mỹ phong phú. Sự vun đắp này tạo nên linh hồn của ngôi nhà thông qua cách họ sống, gìn giữ và trân trọng những giá trị thuộc về ký ức và bản sắc của họ.
MK House không phô trương sự thoải mái, mà lựa chọn sự đủ đầy. Điểm nhấn là ánh sáng tự nhiên và sự kết nối giữa con người và nơi ở của họ. Những yếu tố đơn giản như tầm nhìn thoáng đãng, ánh sáng mặt trời chiếu qua khe cửa, hay sự hiện diện của người thân ngay cả trong những căn phòng khác nhau, nuôi dưỡng một đời sống tinh thần lành mạnh.
PV/archdaily



































