M.Casa
(Văn bản mô tả do KTS cung cấp) M.Casa tái hiện tinh thần của ngôi nhà truyền thống Việt Nam, cân bằng giữa sự giản dị và ấm áp trong nhịp sống đô thị hiện đại. Tọa lạc trên một mảnh đất rộng 6x20m trong một con hẻm nhỏ của TPHCM, ngôi nhà được bao quanh bởi những kết cấu bê tông dày đặc. Cặp vợ chồng trẻ, chủ sở hữu ngôi nhà, mong muốn tìm kiếm một không gian yên tĩnh, gần gũi với thiên nhiên để chào đón gia đình nhỏ của mình.
Địa điểm: TPHCM
Kiến trúc sư: Hinzstudio
Khu vực: 245 m²
Năm: 2025
Ảnh: Quang Trần
Thách thức trong thiết kế là phải dung hòa những hạn chế của một khu đất đô thị, kích thước hẹp, tường ngăn ở cả hai bên và nhu cầu thông gió tự nhiên với mong muốn có một không gian sống khiêm tốn, vững chắc, mang bản chất truyền thống trong bối cảnh hiện đại.
Ý tưởng kiến trúc lấy cảm hứng từ những ngôi nhà truyền thống Việt Nam, với sân trong, hiên nhà, mái dốc và lối đi bên hông. Những yếu tố này được tái hiện bằng ngôn ngữ đương đại, tạo nên một chuỗi không gian uyển chuyển, tràn ngập ánh sáng ban ngày và gió trời tự nhiên.
Với khoảng lùi ở cả mặt trước và mặt sau, ngôi nhà vẫn thông thoáng tự nhiên và thoáng đãng, mang đến sự tĩnh lặng hiếm có và không khí trong lành cho khu dân cư. M.Casa đặt sự thoải mái và sức khỏe tinh thần của con người làm trọng tâm, tạo ra một môi trường nhẹ nhàng cho thế hệ tương lai, đồng thời tinh tế nhắc nhở thế hệ tương lai về những giá trị bền vững, trầm lắng của quá khứ.
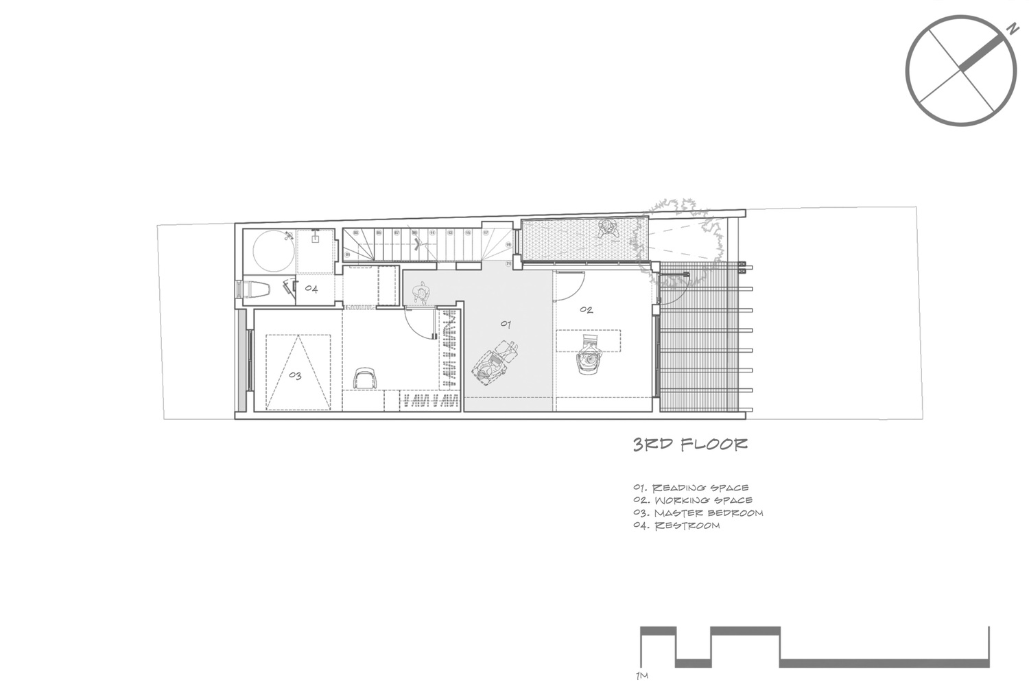
Tầng trệt kết nối phòng khách và bếp thành một không gian mở liền mạch, khuyến khích sự tương tác giữa các thành viên trong gia đình. Một bàn thờ nhỏ gọn, được bố trí hợp lý nằm ở trung tâm ngôi nhà, vừa giữ được nét thiêng liêng vừa hài hòa với bố cục không gian. Tầng hai có hai phòng ngủ ở phía trước và phía sau, với một không gian sinh hoạt chung ở giữa, được thiết kế như không gian vui chơi cho trẻ em. Tầng trên cùng là phòng ngủ chính, góc làm việc và khu vực thư giãn riêng tư, đảm bảo sự yên tĩnh và riêng tư.
Vật liệu bao gồm bê tông trần, gạch trần, ngói đất sét và gỗ nhuộm màu tối, những thành phần tự nhiên, bền bỉ gợi lên sự ấm áp và thân thuộc. Ánh sáng xuyên qua mái ngói và tường gạch tạo nên sự chuyển tiếp mềm mại khắp nội thất, gợi nhớ đến những mái hiên và ngôi nhà làng quê.
M.Casa là hiện thân của sự giản dị, kết nối và những giá trị bền vững của truyền thống Việt Nam trong cuộc sống hiện đại. Không chỉ là nơi trú ẩn, nơi đây còn là nơi nuôi dưỡng cảm xúc và sự cân bằng, giữa thực tế và tâm linh, giữa cũ và mới, nơi sự giản dị trở thành thước đo của sự thanh lịch.
PV/Archdaily




























