Cloud House
(Văn bản mô tả do KTS cung cấp) Trong những năm gần đây, giá nhà ở tại các thành phố lớn của Việt Nam đã tăng vọt và nhanh chóng trở nên quá đắt đối với hầu hết những người độc thân và cặp đôi trẻ tuổi, có thu nhập trung bình, những người không có lựa chọn nào khác ngoài việc sống trong những căn phòng cho thuê nhỏ, thiết kế kém và thiếu tiện nghi trong những ngôi nhà ống điển hình. Do đó, cải thiện chất lượng sống của người ở trong khi vẫn đảm bảo khả năng chi trả về mặt tài chính là mục tiêu kép quan trọng khi thiết kế các dự án nhà ở chung cho thuê trong nội thành.
Địa điểm: TPHCM
Kiến trúc sư: ROOM+ Design & Build
Khu vực: 360m2
Năm: 2025
Ảnh: Sonmeo Nguyen Art Studio
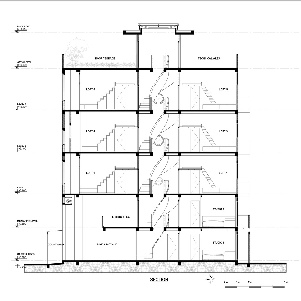
Cloud House là một tòa nhà chung cư sang trọng tại một khu đô thị sầm uất của Thành phố Hồ Chí Minh. Khu đất rộng 70m2 này nằm trong một con hẻm rộng 4m và được bao quanh bởi nhiều ngôi nhà phố có nhiều kích thước và chiều cao khác nhau. Đề xuất thiết kế được thúc đẩy bởi ba khái niệm có mối liên hệ với nhau: phòng riêng theo phong cách gác xép hiện đại, không gian bán công cộng đa chức năng và một cái nhìn thoáng qua về thiên nhiên trong bối cảnh đô thị mật độ cao.
Đầu tiên, sáu phòng suite theo phong cách gác xép và hai phòng studio tiêu chuẩn được sắp xếp gọn gàng trong diện tích tương đối nhỏ của khu đất. Một không gian gác xép tối thiểu được đặt trên khu vực lối vào và phòng tắm của mỗi phòng suite cho thuê để tối đa hóa việc sử dụng không gian của chiều cao từ sàn đến trần nhà là 3,5 mét và mang lại sự rộng rãi và ấm cúng cho không gian sống chính. Một bảng màu và vật liệu trung tính được đề xuất, trong khi đồ nội thất được thiết kế thông minh và đa chức năng như ghế dài, tủ quần áo và tủ lưu trữ được kết hợp hài hòa với các yếu tố cấu trúc thứ cấp, bao gồm cầu thang gỗ tối giản và sàn nhẹ làm bằng khung thép và ván xi măng tiêu chuẩn.
Thứ hai, tất cả các không gian bán công cộng chung trong tòa nhà đều được thiết kế cẩn thận để cung cấp cho cư dân sự tiện lợi và giải trí. Sân trong và một nửa tầng trệt được sử dụng làm bãi đỗ xe đạp và xe đạp, một cầu thang xoắn ốc rộng rãi phù hợp với khu vực trung tâm của tòa nhà và không chỉ đóng vai trò là tuyến đường lưu thông hàng ngày thú vị mà còn là không gian tương tác thân mật và không chính thức. Một khu vực ngồi chung ở tầng lửng và sân thượng cũng được cư dân chia sẻ một cách dễ chịu. Những không gian chung đó tạo ra cảm giác cộng đồng trong nhóm người sống dưới một mái nhà.
Cuối cùng, một loạt các ô cửa sổ và cửa mở hình tròn và hình đám mây ở cả mặt tiền phía trước và phía sau, cũng như giếng trời trên mái nhà, mang đến tầm nhìn lý tưởng, ánh sáng ban ngày và thông gió tự nhiên, đồng thời đảm bảo sự riêng tư và thoải mái. Hơn nữa, sự tương tác giữa đặc và rỗng, ánh sáng và bóng tối được tạo ra bởi những ô cửa mở độc đáo này và không gian nội thất cong của Cloud House ngụ ý mạnh mẽ về một cái nhìn thoáng qua về thiên nhiên giàu trí tưởng tượng, gợi lên cảm giác kỳ diệu và để những người ở đó trải nghiệm cảm giác năng động khi họ đang lang thang giữa những đám mây luôn thay đổi vượt ra khỏi sự hối hả và nhộn nhịp của thành phố.
PV/archdaily






























